Ponuky
Dopyty
Skladové - výrobné priestory na prenájom
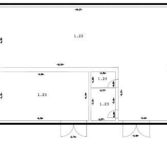
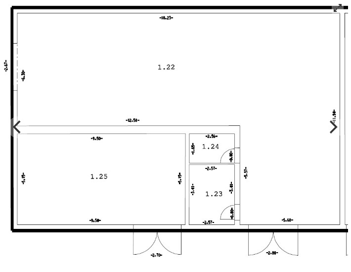
Ponúkame na barter prenájom skladovo - výrobných priestorov. Priestory sú voľné ihneď. Priestory sa nachádzajú pri vlakovej a autobusovej stanici v Leviciach - areál bývalého Demiclénu. Areál je uzavretý a oplotený, v blízkej budúcnosti vybudovaný aj kamerový systém. Priestor tvoria 3 miestnosti podľa pôdorysu. Hlavný priestor má osadené dvoje veľké a vysoké dvere o šírke 2,7 m. Priestory sú vhodné na dielňu, výrobu, sklad. Rozloha miestností: hlavná miestnosť 1,22 = 147 m2, miestnosť 1,23 = 8,8 m2, miestnosť WC 1,24 = 4,2 m2. Poschodie tvoria 2 miestnosti a hala, rozloha spolu cca 100 m2. Rozloha na prenájom spolu 260 m2. Súčasťou je elektrika 230 V a 400 V.
Cena: Dohodou
Detail bartrovej ponuky
- ID:
- 1759
- Pridané:
- 21.10.2025
- Platnosť do:
- 21.10.2026
- Množstvo:
- V popise
- Merná jednotka:
- m2
- Cena za m.j. bez DPH:
- Dohodou
- Stav:
- Stála
Bartrový manažér
- Meno:
- Mgr. Tomáš Chlebana
- Adresa:
- Trenčín
- Mobil:
- 0904 903 542
- Telefón:
- E-mail:
- tchlebana@bartershop.sk
- Skype:







































































